Skip to content
(215) 778-4186
N. Meyer Construction, LLC
Custom Home Building, Remodeling and Commercial Build Out
Home
About Us
Services
Custom Home Builder
Home Remodeling
Additions
Commercial Build Out
Home Plans
Resources
Gallery
Contact Us
Home
About Us
Services
Custom Home Builder
Home Remodeling
Additions
Commercial Build Out
Home Plans
Resources
Gallery
Contact Us
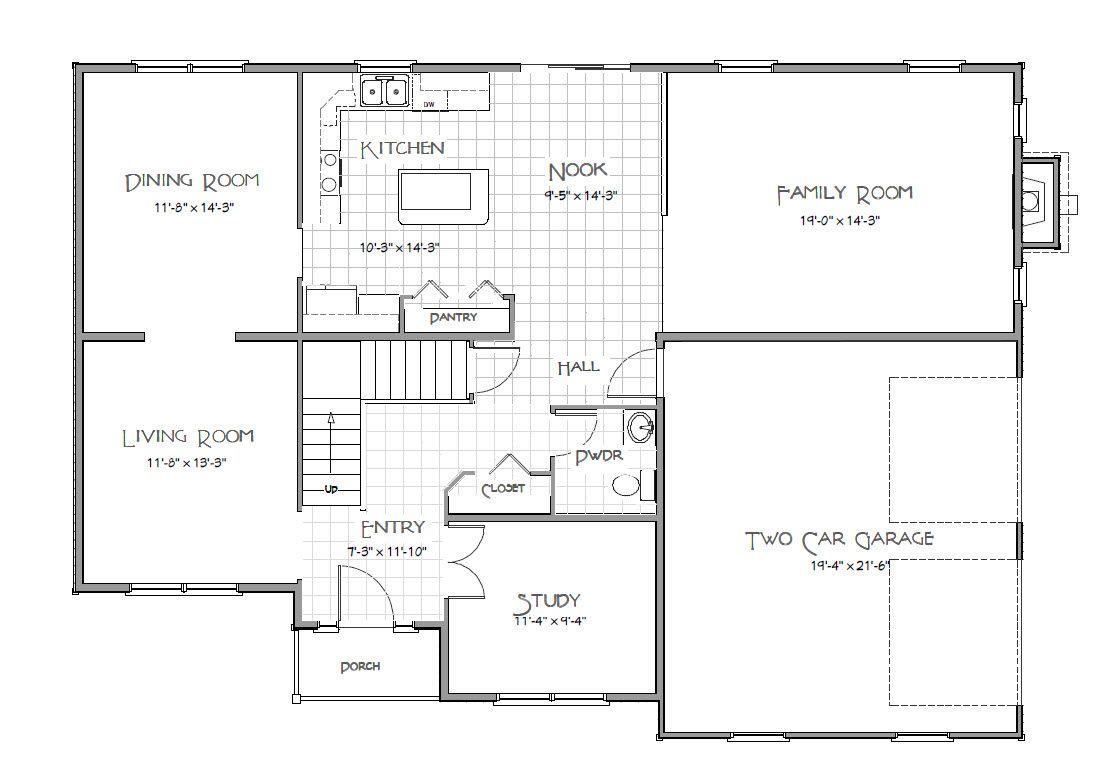
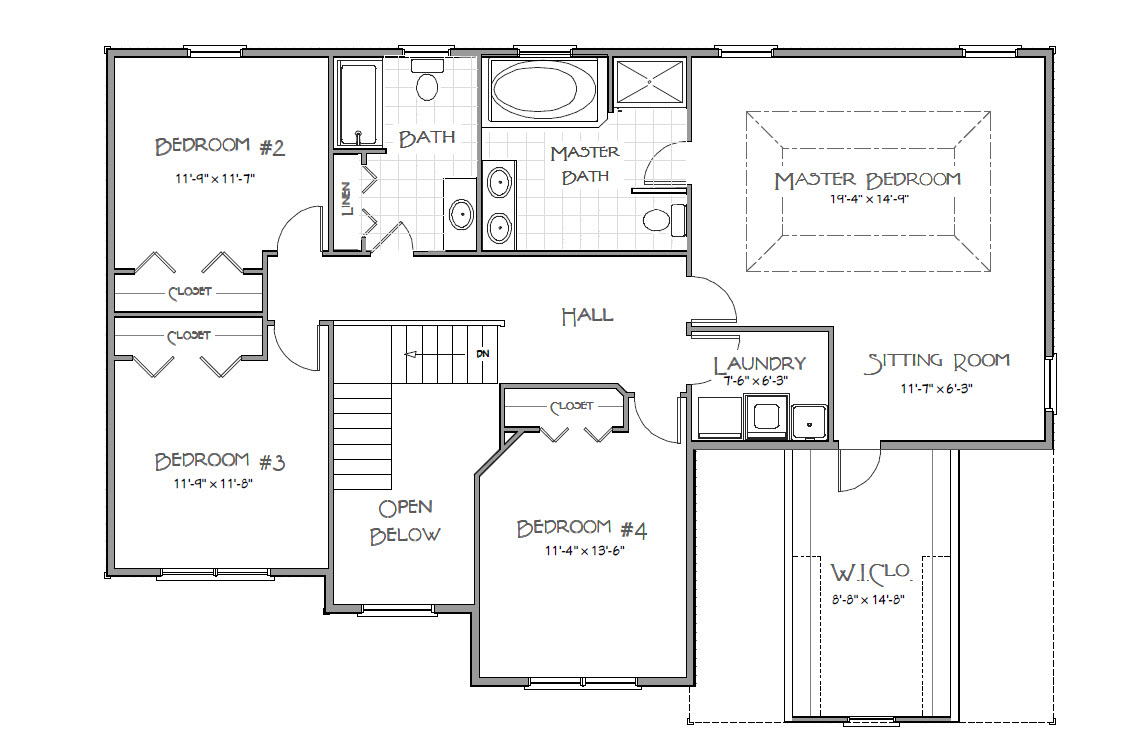
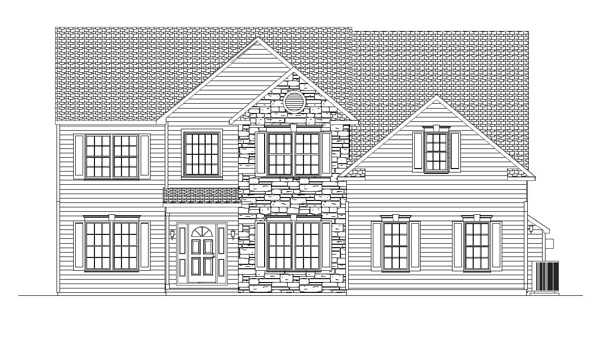
2805SF 2 Story
Go to Top