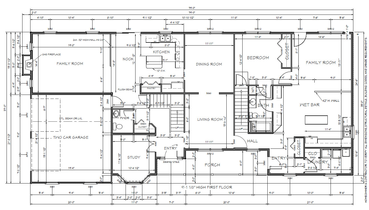
2605SF 2 Story with 1300SF InLaw | Meyer Home Sales LLC Custom Homes and Additions